海淀幸福里户型好不好?户型解析
来源: 时间:2022-12-15 11:14:55 阅读:3757 分享:
在当今时代,房子除了居住和空间,人们对于居住环境的舒适度与健康度也有着更高的要求。北京海淀幸福里主打建面约145平米的奢阔四居及约195平米的至尊宽厅的经典户型。

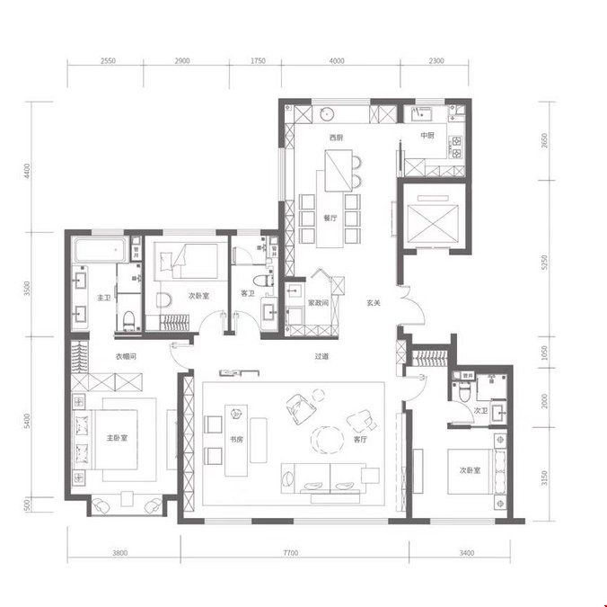
建面195㎡ 四室两厅三卫
北京海淀幸福里建面195平米户型,客厅面宽达到约7.7米,户型总面宽则达到了约14.9米,视野宽阔,空间舒适。其中7.7米至尊宽厅与书房空间灵活联动,空间利用丰富多样。4室2厅3卫的格局,进门后依旧是入户玄关,而且在背面设置了一个相对独立的家政间。南侧正中是客厅,超大面宽约7.7米,进深约5.4米,采用网红的横厅布局,视野非常宽阔。客厅结合过道面积约达到40平米,并且客厅餐厅厨房基本采用一体设计,整体通透性较强。
建面145㎡ 四室两厅两卫
北京海淀幸福里建面约145平米品质四居采光充足,明厨明卫,功能齐全,餐客厅一体化设计,互动性好,户型非常方正,南北通透,4室2厅2卫空间格局。基本上按照两梯两户打造,相当于一梯一户,私密性比较好,更能够体现单元入户的尊贵感。

北京海淀幸福里作为北清路上开创时代的封面之作,海淀幸福里崇尚极简美学,基于一线的设计品质,联手goa大象设计,新加坡知名景观设计公司JTL景观设计,通过现代审美对话东方美学,构筑“简约奢雅立面、东方美学隐逸园林、国际美学轻奢风格”。
北京海淀幸福里以更懂海淀、更爱家人、更具未来的姿态与初心致敬海淀菁英人群。建筑理念、生活方式、人居理想化的升级、更新、以后也必将引发愈来愈多置业者的信赖与认可。
热门资讯