峯范北京户型优势——总价390万起入住低密洋房社区

金地长安街新居所——峯范北京,长安街首钢园四轨交汇,建面约61㎡舒适一居南北通透,建面77㎡温馨两居户型方正,建面92㎡宽敬三居三面采光,建面99㎡奢阔三居三面朝南,总价390万起入住低密洋房社区。一起来看下户型优势。

建面约61㎡一室两厅一卫
户型解析
1.南北通透,清风与阳光自在流淌,居住更舒适;
2.南向主卧全景飘窗,舒适阳光生活,所见即风景;
3.DK餐厨一体,放大生活空间,开个party和朋友尽情欢聚;
4.独立玄关,超体积收纳,让空间加倍,居家生活整洁有序,
建面约69㎡两室两厅一卫
户型解析
1、1:1黄金面宽进深比:布局方正,阅朗大气,包揽所有享受;
2、宽厅超尺度大窗:敞开明亮,增加居住的舒适度与美观度;
3、双卧全景飘窗:美景随处可见,打造全家人的幸福居所;
4、LDK餐厨客一体:超大社交空间,聚会派对游刃有余;
5、干湿分离,三段式卫生间:分区明确,为健康生活加分;

建面约74㎡两室两厅一卫
户型解析
1.IMAX巨幕宽厅超尺度大窗,IMAX级采光面,给予采光,视野双双升级;
2.南向主卧全景飘窗270°转角观景,拥揽四季风景,敬呈丰盛视野;
3.LDK餐厨一体,超大社交空间,聚会派对游刃有余;
4.独立玄关超体积收纳,盛放生活项碎,增加生活仪式感。

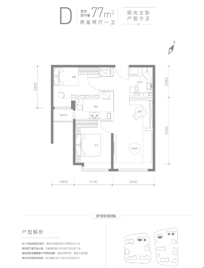
建面约77㎡两室两厅一卫
户型解析
1、近1:1黄金面宽进深比,布局方正,阔朗大气,包揽所有享受;
2、南向宽厅超尺度大窗,IMAX级采光面,给予采光,视野双双升级;
3、阳光主卧全景飘窗270°转角观景,清晨的阳光与倍晚的美景均兼得;
4、LDK餐厨客一体,放大生活空间,开个party和朋友尽情欢聚;
5、独立玄关,超体积收纳,盛放生活项碎,增加生活仪式感。

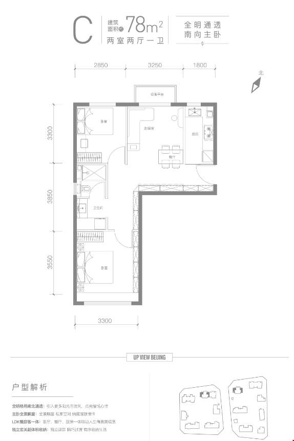
建面约78㎡两室两厅一卫
户型解析
1、全明格局,南北通透,引入更多阳光与清风,点亮愉悦心情;
2、南向主卧全景飘窗,让视野向外延伸,将写意赋予生活;
3、LDK餐厨一体,相对独立又互相融合,营造阔绰空间感;
4、独立玄关,超体积收纳,让万物归家,升级品质生活。

建面约92㎡三室两厅一卫
户型解析:
1.IMAX巨幕宽厅超尺度大窗,体验“巨幕式景观视野,打造IMAX视觉体验;
2.双主卧全景飘窗主卧270°转角观景,拥揽四季风景,敬呈丰盛视野;
3.LDK餐厨一体,相对独立又互相融合,营造阔绰空间感;
4.独立储藏间,让家庭情趣得到延伸,让项碎之物有地可寻。

建面约99㎡三室两厅两卫
户型解析
1、近1:1黄金面宽进深比,方正格局,实现空间最大使用率;
2、南向三面宽超尺度大窗,放宽生活的密度,让更多阳光入幕;
3、双主卧全景飘窗,南向揽景视野,呈现更多光景写意;
4、LDK餐厨客一体,超大社交空间,聚会派对游刃有余;
5、独立家政间,超体积收纳,告别生活项碎。
峯范北京项目产品规划为建面约60-100平米的峯范系都市精英高阶居所,是金地健康家2.0标准化落地北京的首个项目,以南向三面宽阳光户型、超大窗墙比、高品质高颜值精装,“玩呗”健康互动景观系统,为西部精英青年量身打造的阳光、舒适、健康的生活居所。